Edificio en CIUTAT VELLA, con 225 m² construidos, para reformar, exterior, 1870
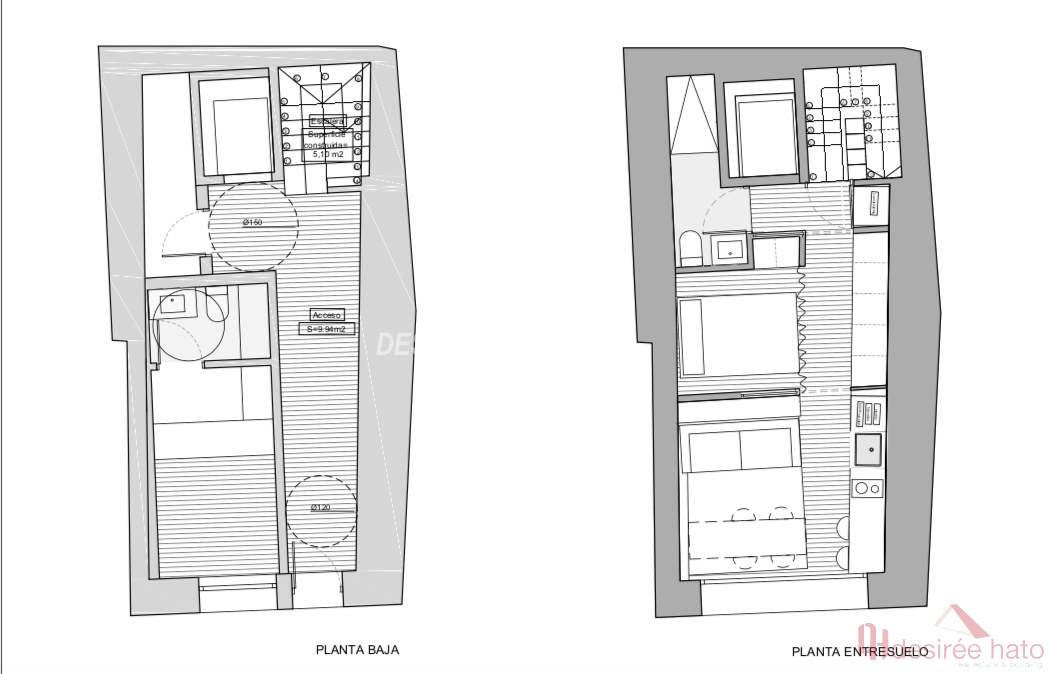
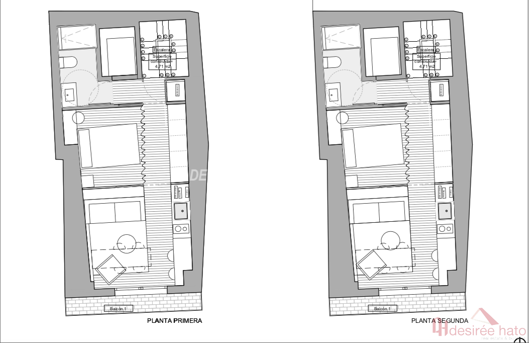
Magnifico edificio para rehabilitar en el corazón de Valencia en Ciutat Vella. Junto al Mercado Central, con tráfico peatonal constante, alto interés cultural y demanda turística anual estable. A menos de 200 metros de la Lonja, Los Santos Juanes y Plaza del Ayuntamiento. Año de Construcción 1870. Superficie 225m2. Distribución BAJA+4 PLANTAS. Se podría hacer bajo comercial de 27m2 aproximadamente+3 estudios completos de 40m2 aprox. MÁS INFORMACIÓN CONSULTAR.
Este anuncio es a título informativo, no vinculante ni contractual con posibles variaciones o erratas.
HATO Y LLOPIS S. L está inscrita en la Asociación de profesionales Inmobiliarios APIVA Nº 0163 y en el Registro de agentes de intermediación inmobiliaria de la COMUNIDAD VALENCIANA RAICV Nº 1614.
